Moraghan Engineering, PC
Engineers | Architects | Planners
About
Hurricane Sandy Recovery
New Foundation Plan
Photos
Residential
Single Family Residences
Apartment Buildings
Commercial
Jones Beach Amphitheater
Assisted Living Facility
Sherwin-Williams
St. Francis Hospital
Sunoco Station
Other Projects
Construction Management
Photo Gallery
Contact
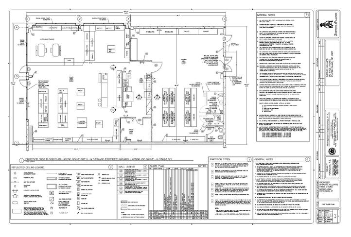
Sherwin-Williams Paint Store (Staten Island, NY)
Play
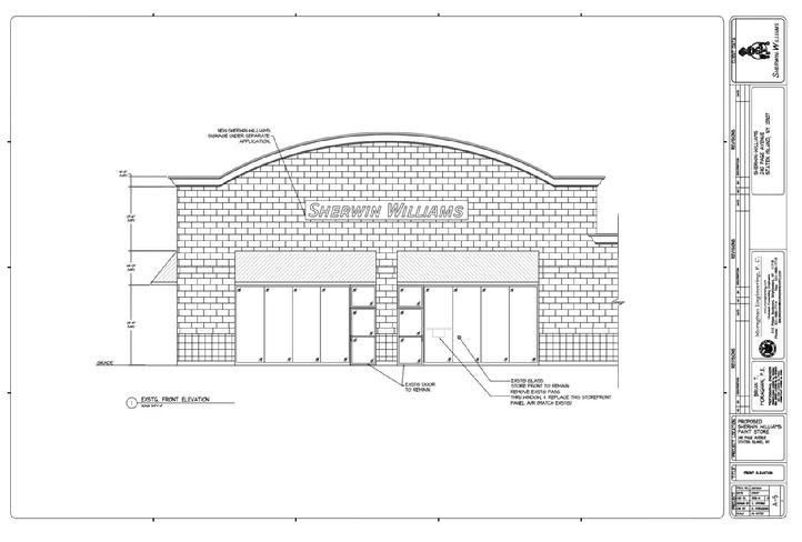
Front Elevation
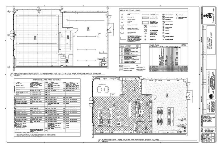
First Floor Plan
Ceiling & Floor Finish Plans
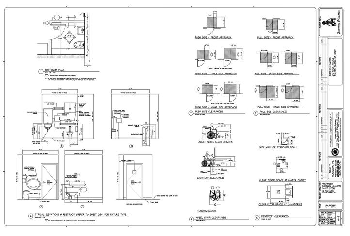
Restroom & Wheelchair Clearances
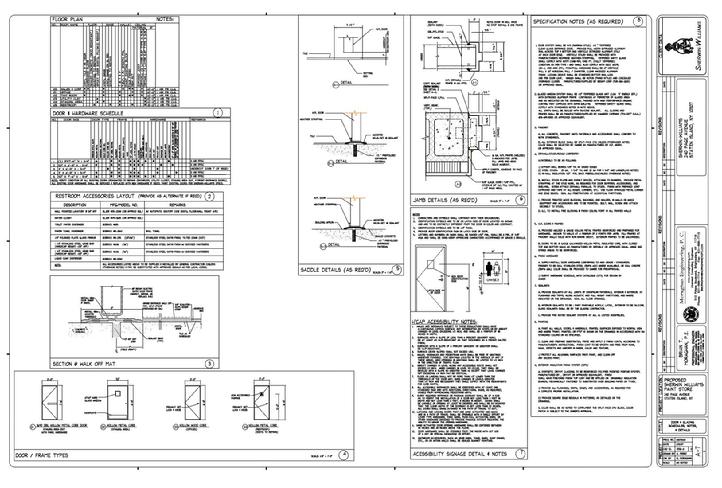
Notes & Details
Back to Commercial Projects